EDIFICIO QUEEN Moldes 2050
EDIFICIO QUEEN Moldes 2050
Tipo: Encargo
Cliente: Inversiones BUE S.R.L.
Programa Mixto: Vivienda colectiva, Oficinas y locales comerciales de Escala Media
Tamaño: 10.500m2
Ubicación: Belgrano – CABA
Estado: Obra en estado de desarrollo
Año: 2018
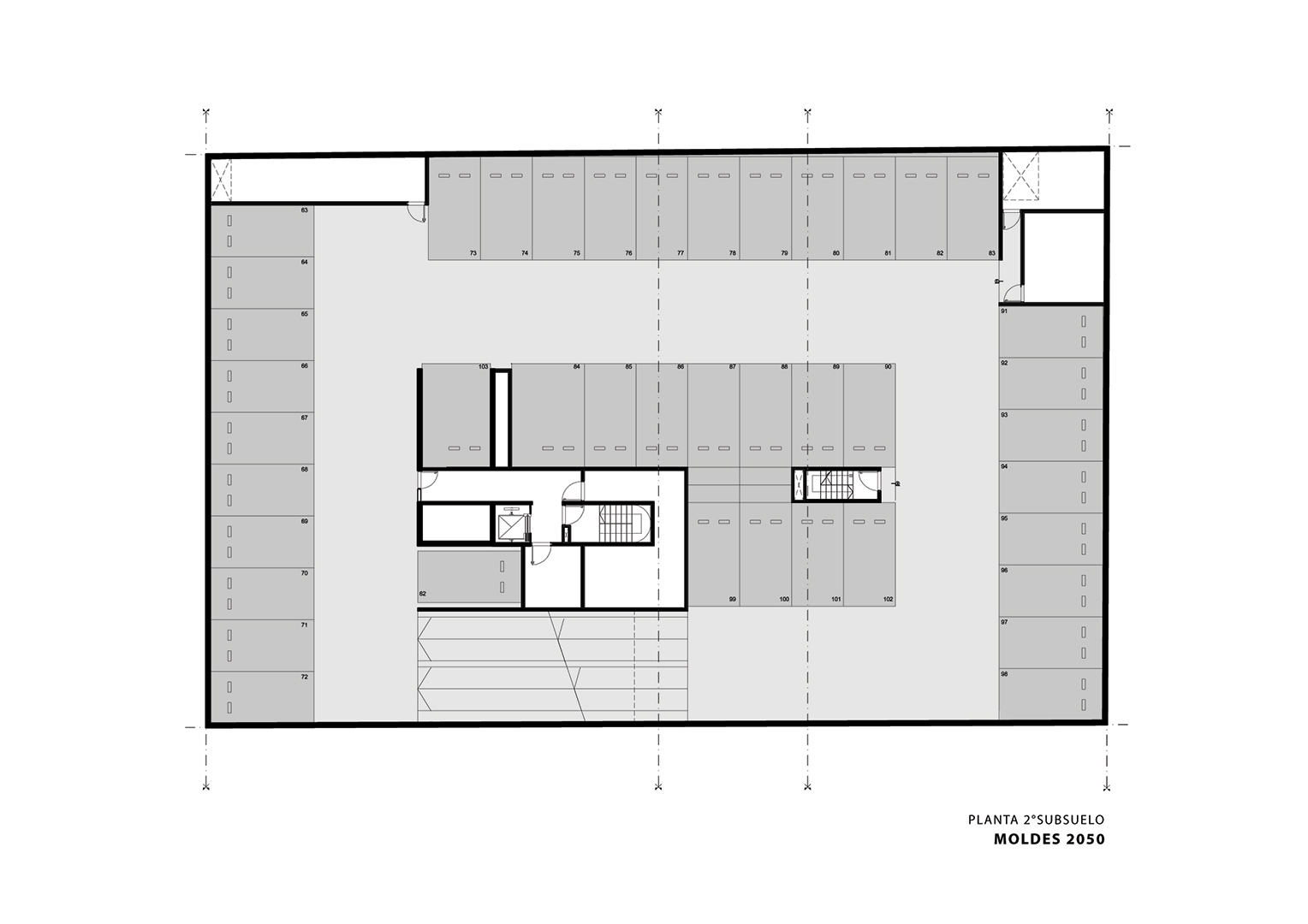
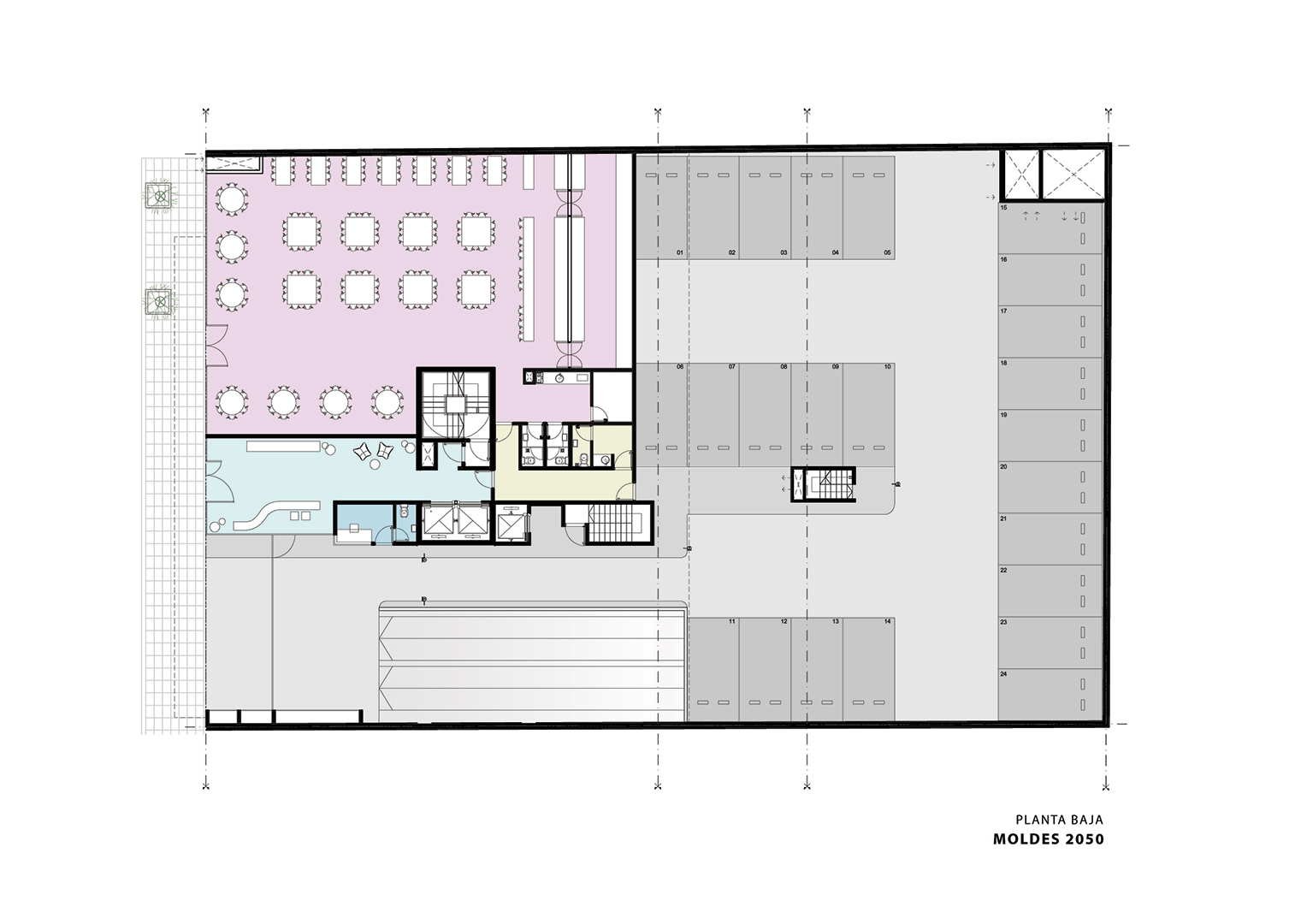
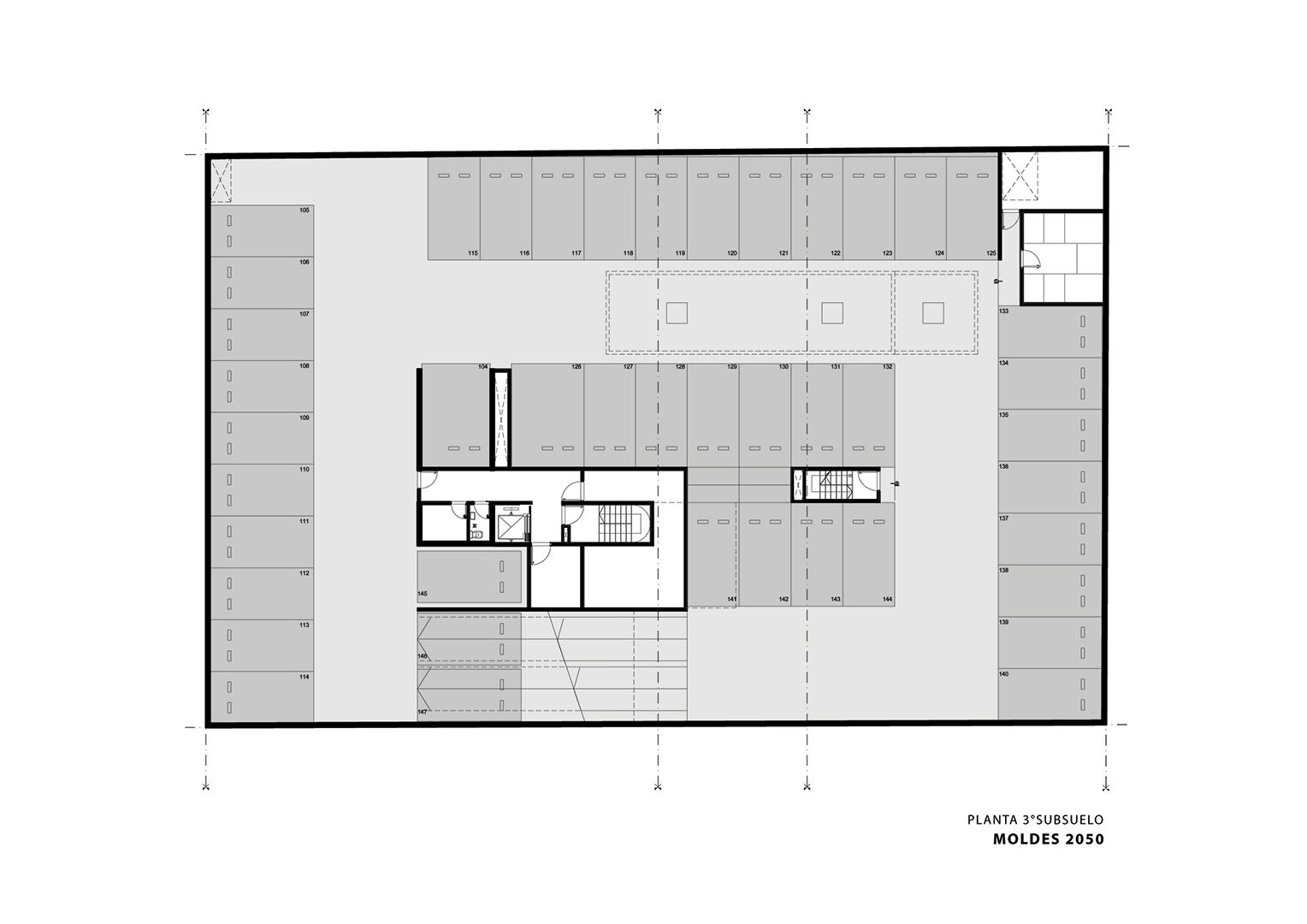
Memoria Técnica

Tipo: Encargo
Cliente: Inversiones BUE S.R.L.
Programa Mixto: Vivienda colectiva, Oficinas y locales comerciales de Escala Media
Tamaño: 10.500m2
Ubicación: Belgrano – CABA
Estado: Obra en estado de desarrollo
Año: 2018

Memoria Descriptiva

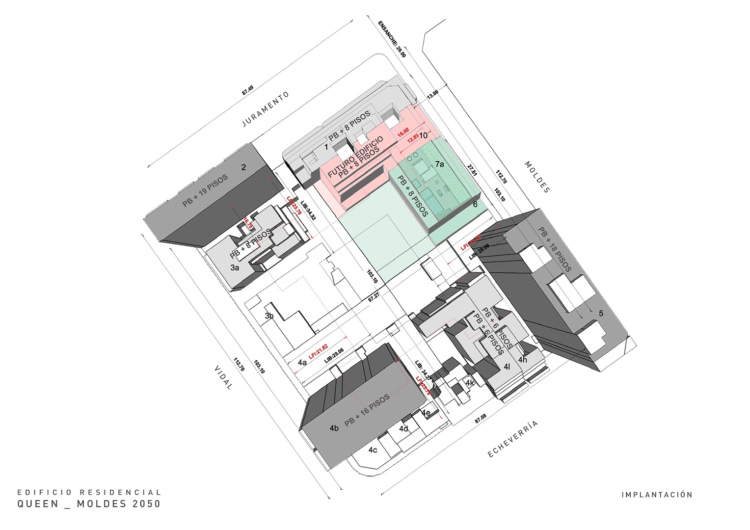
El Edificio se encuentra emplazado en el Barrio de Belgrano de la Ciudad Autónoma de Buenos Aires, en un Solar de Generosas dimensiones dentro de una manzana cuyo tejido se presenta muy heterogéneo por diferentes razones particulares como ser el futuro ensanchamiento al que se encuentran sujetos los Lotes Frentistas que dan a la Calle Juramento y por las diferentes Tipologías de los Edificios Preexistentes que definen una cuadra muy irregular. .

Dentro de este contexto especial, el Edificio se presenta como una oportunidad para dar una respuesta correcta que pueda mejorar el completamiento del Tejido Urbano de la Manzana, entendiendo las construcciones existentes como así también los futuros vecinos en aquellos Lotes todavía disponibles y contiguos al Desarrollo. En este sentido entonces es que se encuadra esta Consulta de Tejido que comprende y propone las siguientes desiciones proyectuales que a continuación se detallan:
El Edificio se retira 4 metros de su medianera izquierda, entendiendo la necesidad de sumarse al Retiro de la vecina Torre preexistente, para así conformar un Generoso Espacio Urbano Visible desde la calle, que permite generar una nueva esquina, a partir de la cual el Edificio proyectado gira y resuelve una Vista Continua que evita la aparición y Construcción de una Medianera visible desde la Vereda.
El Volumen Construible del Espacio cedido al Retiro se propone recuperarlo con la construcción de un Nivel mas, Definiendo una Volumetria con altura final de PB mas 7 pisos y un primer retiro de Vivienda mas un segundo Retiro Técnico, alcanzando una Altura total que se corresponde con la de los Edificios Preexistentes cuyo frente dan a la calle Juramento, para que en el futuro la Construcción que vaya a completar el lote con altura en la calle Moldes 2076-78-80 conecte nuestro desarrollo con lo existente sobre calle Juramento unificando la Linea de Cielo. Es en este sentido entonces, que se ha relevado la Altura Libre de la Planta Baja del Edificio Frentista de Calle Juramento, y a partir de Esta Medida (5.50m), se ha desarrollo el Corte de Nuestro Desarrollo. Asimismo y en relación a la propuesta anterior, estamos prescindiendo de dejar la Tronera sobre el lado derecho del Edificio, entendiendo que como la futura construcción a realizarse en el lote con Altura 2076-78-80 tiene una ocupación total de la parcela a partir de que las Lineas de Frente Interno de la Manzana no pasan por ese solar, y como ese futuro Edificio seria un caso de Enrase Cantado, se le daría la oportunidad a ese Futuro Desarrollo Vecino de poder construir hasta el Fondo del Lote, eliminar la Medianera existente de los Edificios Frentistas sobre Juramento, y además ventilar sus locales internos a través del pulmón de nuestro desarrollo haciendo así innecesaria la Tronera que se propone eliminar en un principio.
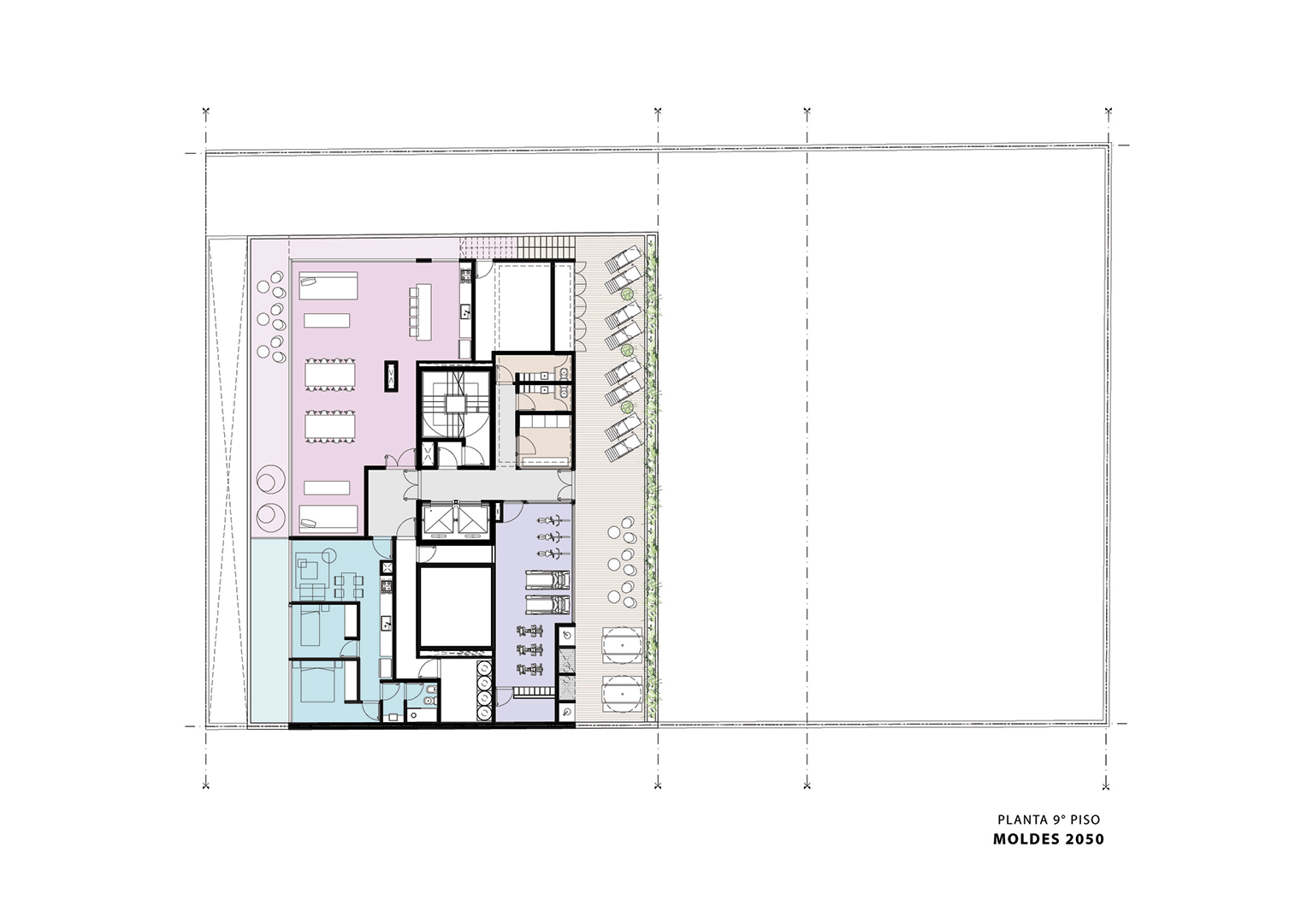
También se propone el diseño de una estructura aporticada sobre el primer Retiro del uso de Viviendas en el 8vo. Piso como parte de un Plegado Plástico que le da orden y significación al todo de la Propuesta, abrazando todas las salientes de las Expansiones de las unidades que proponemos realizarlas en 1.50m. de Voladizo, tanto en el Frente como en el Contra Frente, para que junto a las dimensiones del solar, podamos tener mayor margen de plasmar ideas de diseño sustentable en el Perímetro del Desarrollo, que nos permiten pensar en un Edificio cuyo diseño pueda hacer Ciudad de un modo más amigable, para atenuar el vértigo de la calle y la densidad muraría en Fachada.
Es en este sentido que surge el trabajo de los Muros Verdes Verticales, que en forma natural crecen en busca de la Luz entre los huecos de los balcones en la Fachada y aparecen ya no como un capricho, si no como la manera de ablandar la rigidez del Tejido Urbano. De esta manera el Desarrollo hace equilibrio dando respuesta a un Barrio con un tejido denso y consolidado, con una impronta moderna y sustentable, para lo cual además se proyecta una cubierta verde con el fin de ayudar a resolver y amortiguar el agua de lluvia y a la vez y en el mismo sentido, se dispondrá de un tanque ralentizador que resuelva el 100% del agua de lluvia que cae dentro del pulmón de Manzana del Lote como si en el mismo existiera terreno absorbente.
Con la misma mirada en la Sustentabilidad, se plantean objetivos para mejorar la Eficiencia energética del Edificio, para lo cual se piensa la colocación de Carpinterías DVH para mejorar el Balance Térmico de todo el Desarrollo, es decir la Ganancia de Calor en Verano y la Perdida de Calor en Invierno, lo que implica una baja considerable del uso de Energía para Acondicionar los Interiores de la Unidades; Acondicionamiento que a la vez se piensa con la Instalación de Equipos de Aire Acondicionado Multisplit, Sistema este que aumentan aun mas la eficiencia Energética. Por ultimo y en el mismo sentido, se Proyecta colocar Artefactos de Iluminación con Tecnología LED en todos los Sectores Comunes del Edificio.
Por otro lado el Desarrollo apoya varias de las iniciativas en las que el Gobierno de la Ciudad Autónoma de Buenos Aires a puesto en discusión y en las que ha estado trabajando en estos últimos años como por ejemplo el tema de la concientización acerca de la Separación de los Residuos como así también el hecho de promover y favorecer el uso de las Bicicletas como transporte en la Ciudad. En Relación al primer punto el Edificio tiene pensado proponer un espacio común en el Palier de cada Piso, con tres grandes recipientes (Para Papeles, Vidrios y Metales, y Orgánicos), para que los residentes puedan ya iniciar en conjunto el proceso de separación dentro del Edificio. Y en relación al segundo punto se proyecta dentro del Edificio un Sector para guardar bicicletas de fácil acceso desde la zona de cocheras con independencia de pasar por el Hall Principal para acceder a la calle.
En definitiva y como síntesis para entender la génesis de este Proyecto, podemos decir que existe en la visión de los Desarrolladores, la idea de asumir el compromiso de no solo proponer el Edificio que mejor se apropie del solar con el fin de mejorar el Tejido existente, sino también el de incorporar ciertas innovaciones tecnológicas que nos permitan adaptarnos a los nuevos escenarios que plantea el Cambio Climático, para mitigar los efectos de este y asi hacer arquitectura de una manera mas Consciente y Sustentable hacia el futuro..

Otros Proyectos
EDIFICIO ARKTE Uriarte 837 | 2018

Vivienda colectiva y estudios profesionales de escala baja

EDIFICIO ARKWORK Iturri 1332 | 2003

Edificio corporativo

EDIFICIO ARKTE Gorriti 3851 | 2007

Vivienda colectiva de escala baja

Contacto